Вхід на сайт

Ел. пошта:
Пароль:

Реєстрація на сайті

Призвіще: Область:
Ім'я: Населений пункт:
    По батькові: Номер телефону:
    Ел. пошта: Компанія:
      Пароль: Посада:
      Повторіть пароль: Рік початку роботи:
      Фото:
      З правилами розміщення об'єктів погоджуюсь

      Забули пароль?

      Вкажіть ел. пошту — ми надішлемо Вам новий пароль для входу
      Ел. пошта:

      Проблема на сайті

      Закрити
      Ваш e-mail:
      (необов'язково)
      Розкажіть нам, що сталось


      Н. Сотни — Продається офіс

      (г. Полтава, Ленинский район)

      120000 $

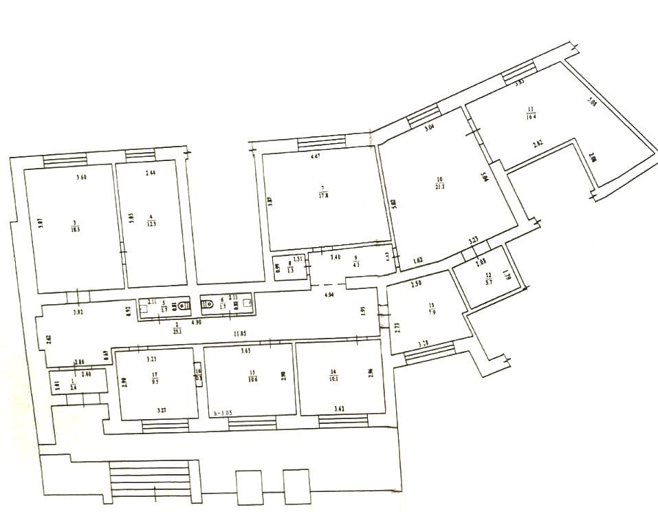
      Загальна площа: 164 кв.м

      Кімнат: 9

      Поверх: 1

      Продаж офісного приміщення на Подолі по вул. Н. Сотні (зуп. Оптика, р-н маг. АТБ) з окремим входом з фасаду будинку, загальною площею 164 м2 на 9 кабінетів
      Характеристики:
      -1 поверх, вхід з фасаду будинку, парковка для авто
      - ресепшен
      - 9 кабінетів (2 кабінети з приймальнями, 5 кабінетів- окремі )
      - 2 санвузли
      - комора
      - коридор
      - висота приміщення Н= 3,05м

      Комунікації:
      - централізоване опалення та водовідведення
      - потужність електромережі 3кВт 380V
      - кондиціонування приміщень- кондиціонери в кабінетах

      Надіслати скаргу

      Закрити
      Поскаржитися на об'єкт «Н. Сотни (г. Полтава, Ленинский район)»
      Ваш коментар:(Необов'язково)
      Ваша скарга буде надіслана ріелтору, що розмістив об'єкт, а також адміністрації сайту АФНУ.
      Ваше ім'я:
      (Обов'язково)
      Ваш e-mail для відповіді:
      (Обов'язково)

      Вам также могут подойти

      Петлюри Симона (г. Полтава, Октябрьский район) - Продається офіс, 120000 $ - АФНУ

      Оновлено: 24 вересня

      Розміщено: 26 червня

      Продається офіс

      2 кімн., площа 93.5, поверх 1/5

      г. Полтава, Петлюри Симона

      120000 $

      Остапченко Александр Степанович

      соучредитель (Агентство недвижимости "Альянс риэлти" Полтава)

      Пропонується до продажу нежиле приміщення в жилому будинку загальною площею- 93,4 м²

      Основні характеристики:
      - місцерозташування: район зупинки ОЦЕВУМ
      - поверх: 1-й з виходом на фасадну частину будівлі
      - загальна…

      Детальніше

      Коментарі