Вхід на сайт

Ел. пошта:
Пароль:

Реєстрація на сайті

Призвіще: Область:
Ім'я: Населений пункт:
    По батькові: Номер телефону:
    Ел. пошта: Компанія:
      Пароль: Посада:
      Повторіть пароль: Рік початку роботи:
      Фото:
      З правилами розміщення об'єктів погоджуюсь

      Забули пароль?

      Вкажіть ел. пошту — ми надішлемо Вам новий пароль для входу
      Ел. пошта:

      Проблема на сайті

      Закрити
      Ваш e-mail:
      (необов'язково)
      Розкажіть нам, що сталось


      без комісії Газова, 32 — Продається промисловість

      (г. Львов, Галицкий район)

      1285000 $

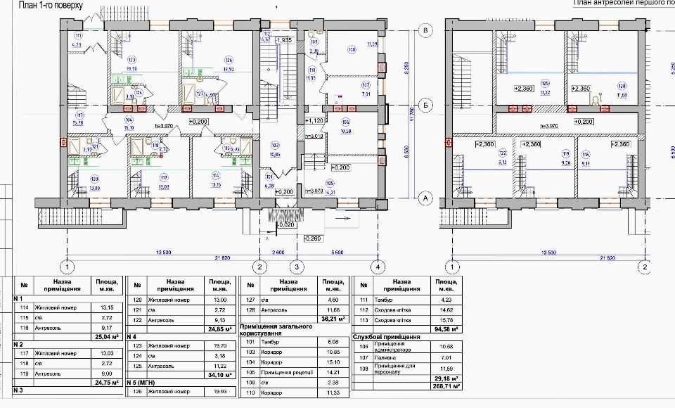
      Загальна площа: 1060 кв.м

      К-ть поверхів: 3

      Продаж БЕЗ КОМІСІЇ комерційного приміщення з проектом та дозвільною документацією
      на реконструкцію під апарт-готель на 21 номер загальною площею 1060 м2 (в тому числі підвальних приміщень 200 м2).
      Будівля знаходиться в історичному ареалі колишньої Газовні у Львові - першої на теренах України.
      Розроблено детальний план забудови даного кварталу та затверджено органами місцевого самоврядування схему громадського простору, пішохідними звʼязками та зеленою зоною.
      Чудова нагода інвестувати у високоприбутковий та стабільний бізнес у місті відродженого Лева
      1 285 000$
      0975543330 Олена

      Надіслати скаргу

      Закрити
      Поскаржитися на об'єкт «Газова, 32 (г. Львов, Галицкий район)»
      Ваш коментар:(Необов'язково)
      Ваша скарга буде надіслана ріелтору, що розмістив об'єкт, а також адміністрації сайту АФНУ.
      Ваше ім'я:
      (Обов'язково)
      Ваш e-mail для відповіді:
      (Обов'язково)

      Коментарі