Вхід на сайт

Ел. пошта:
Пароль:

Реєстрація на сайті

Призвіще: Область:
Ім'я: Населений пункт:
    По батькові: Номер телефону:
    Ел. пошта: Компанія:
      Пароль: Посада:
      Повторіть пароль: Рік початку роботи:
      Фото:
      З правилами розміщення об'єктів погоджуюсь

      Забули пароль?

      Вкажіть ел. пошту — ми надішлемо Вам новий пароль для входу
      Ел. пошта:

      Проблема на сайті

      Закрити
      Ваш e-mail:
      (необов'язково)
      Розкажіть нам, що сталось


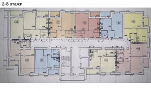
      ул. Борткевича, 7 — Продається квартира в новобудові

      (г. Харьков, Киевский район)

      30500 $

      Загальна площа: 43 кв.м

      Жила площа: 17 кв.м

      Площа кухні: 11 кв.м

      Кімнат: 1

      Поверх: 7

      К-ть поверхів: 16

      Продається 1-кімнатна квартира в новобудові ЖК "Гідропарк", по вул. Шевченко, 327. В радіусі 2 км. від комплексу розташовані: зупинка громадського транспорту (трамваї, автобуси); невеликі продуктові магазини; 2 школи; 2 саду; розваги і відпочинок: Журавлівський гідропарк, пляжі і пару кафе. На території комплексу планується благоустрій території: обладнані дитячі майданчики, комфортні зони відпочинку і занять спортом, виділена гостьова паркувальна зона і багаторівневий паркінг.
      -
      Квартира розташована в будинку 5. Здача будинку запланована на кінець 2021, до ремонтів можна буде приступати з весни 2022 року.
      Площа квартири:
      Загальна площа - 43 м²;
      Житлова площа - 17 м²;
      Кухня - 11 м².
      -
      ПОТРІБНО КАПІТАЛЬНИЙ РЕМОНТ.
      КОМПЛЕКТАЦІЯ КВАРТИРИ:
      • встановлені перегородки як зазначено на плані;
      • металопластикові вікна (viknaland)
      • горизонтальна розводка опалення та радіатори опалення (є можливість поставити лічильник на тепло, регулятори на батареї і контролювати подачу тепла в квартиру індивідуально);
      • вхідні залізні двері;
      • лічильник на електрику;
      • підведені комунікації (холодна, гаряча вода);
      • каналізація;
      • прийнято електрику;
      • зроблено зовнішнє утеплення стін (утеплювач мінеральна вата 100 мм).
      -
      Буду радий Вас чути):
      Пн-Пт - 8: 00-20: 00.
      Сб-Нд - II: 00-20: 00
      Святкові дні - вихідний.

      Надіслати скаргу

      Закрити
      Поскаржитися на об'єкт «ул. Борткевича, 7 (г. Харьков, Киевский район)»
      Ваш коментар:(Необов'язково)
      Ваша скарга буде надіслана ріелтору, що розмістив об'єкт, а також адміністрації сайту АФНУ.
      Ваше ім'я:
      (Обов'язково)
      Ваш e-mail для відповіді:
      (Обов'язково)

      Коментарі