Вхід на сайт

Ел. пошта:
Пароль:

Реєстрація на сайті

Призвіще: Область:
Ім'я: Населений пункт:
    По батькові: Номер телефону:
    Ел. пошта: Компанія:
      Пароль: Посада:
      Повторіть пароль: Рік початку роботи:
      Фото:
      З правилами розміщення об'єктів погоджуюсь

      Забули пароль?

      Вкажіть ел. пошту — ми надішлемо Вам новий пароль для входу
      Ел. пошта:

      Проблема на сайті

      Закрити
      Ваш e-mail:
      (необов'язково)
      Розкажіть нам, що сталось


      Соборності (Жовтнева) вулиця, 25Б — Здається торгівельний майданчик

      (г. Полтава, Октябрьский район)

      30000 грн.

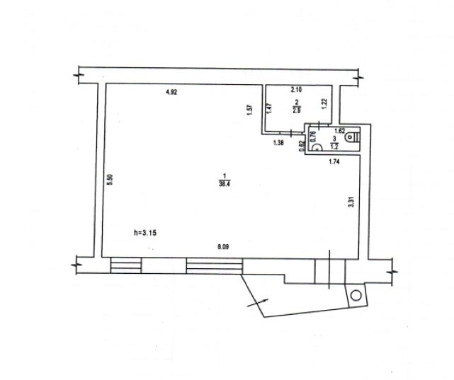
      Загальна площа: 42.5 кв.м

      Поверх: 1

      К-ть поверхів: 5

      Сдам в аренду торгово- офисного помещения общей площадью 42,5 м.кв в Центре, по ул. Соборности, 25-б (в районе театра Гоголя), на 1 этаже, три окна на фасад здания

      Характеристика помещения:
      - общая площадь – 42,5 м.кв;
      - зал- 38,4 м.кв;
      - бытовая комната – 2,9 м.кв;
      - санузел- 1,2 м.кв;
      - высота Н= 3,15 м;
      - перекрытие ж/б

      Коммуникации/состояние:
      - централизованные;
      - этаж - первый;
      - материал стен- кирпич;
      - cостояние– ремонт бизнес класса, входная группа- отделка гранит;
      - отдельный ввод электричества- 40А (10кВт)

      --Стоимость аренды: 30 000 грн/мес + коммунальные услуги (оплата первый и последний месяц) + одноразовая комиссия АН 50%.

      ( 066 )9766090, ( 068 )9766090 Александр

      Надіслати скаргу

      Закрити
      Поскаржитися на об'єкт «Соборності (Жовтнева) вулиця, 25Б (г. Полтава, Октябрьский район)»
      Ваш коментар:(Необов'язково)
      Ваша скарга буде надіслана ріелтору, що розмістив об'єкт, а також адміністрації сайту АФНУ.
      Ваше ім'я:
      (Обов'язково)
      Ваш e-mail для відповіді:
      (Обов'язково)

      Вам также могут подойти

      Київське Шосе, 1 (г. Полтава, Октябрьский район) - Здається торгівельний майданчик, 35000 грн. - АФНУ

      Оновлено: 25 лютого

      Розміщено: 4 листопада 2025

      Здається торгівельний майданчик

      площа 100, поверх 1/1

      г. Полтава, Київське Шосе, 1

      35000 грн. без комісії

      Остапченко Александр Степанович

      соучредитель (Агентство недвижимости "Альянс риэлти" Полтава)

      Оренда окремої офісної будівлі з ділянкою 35 соток
      м. Полтава, вул. Київське Шосе, 1-Б (траса Київ–Харків)
      Здається в оренду окремостояча офісна будівля 100 м² + закрита ділянка 35 соток, огороджена…

      Детальніше

      Київське Шосе, 1 (г. Полтава, Октябрьский район) - Здається торгівельний майданчик, 35000 грн. - АФНУ

      Оновлено: 25 лютого

      Розміщено: 4 листопада 2025

      Здається торгівельний майданчик

      площа 100, поверх 1/1

      г. Полтава, Київське Шосе, 1

      35000 грн. без комісії

      Остапченко Александр Степанович

      соучредитель (Агентство недвижимости "Альянс риэлти" Полтава)

      Оренда окремої офісної будівлі з ділянкою 35 соток
      м. Полтава, вул. Київське Шосе, 1-Б (траса Київ–Харків)
      Здається в оренду окремостояча офісна будівля 100 м² + закрита ділянка 35 соток, огороджена…

      Детальніше

      Коментарі