Вхід на сайт

Ел. пошта:
Пароль:

Реєстрація на сайті

Призвіще: Область:
Ім'я: Населений пункт:
    По батькові: Номер телефону:
    Ел. пошта: Компанія:
      Пароль: Посада:
      Повторіть пароль: Рік початку роботи:
      Фото:
      З правилами розміщення об'єктів погоджуюсь

      Забули пароль?

      Вкажіть ел. пошту — ми надішлемо Вам новий пароль для входу
      Ел. пошта:

      Проблема на сайті

      Закрити
      Ваш e-mail:
      (необов'язково)
      Розкажіть нам, що сталось


      без комісії Лідіце, 36 — Продається будинок

      (г. Бровары)

      75000 $

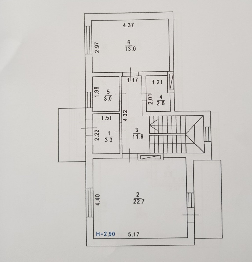
      Загальна площа: 120 кв.м

      Площа ділянки: 2.8 сот

      Кімнат: 4

      К-ть поверхів: 2

      Дивіться відео https://youtu.be/j_Q_bVCVn74

      Новий Будинок-дуплекс у м. Бровари за вигідною ціною!

      Будинок-дуплекс має 2 поверхи, загальною площею 120кв.м.
      Побудований з дотриманням всіх норм і правил. Є фото та відео-фіксація кожного етапу робіт.
      Своя скважина на 30м, каналізація+септик з переливом на 57м.куб.
      Виготовлена фінішна штукатурка під чистову. Заведені всі комунікації, розведено електрику (20кВт) та опалення. Тепла підлога на 1-му поверсі.
      1-й поверх: кухня-вітальня з виходом на терасу, кабінет, с/в та котельня;
      2-й поверх: 3 спальні кімнати та 2 с/в.
      Фундамент - монолітний з утепленням пінополістеролом та гідроізоляцією Техноніколь.
      Стіни - піноблок з утепленням пінопласт ГОСТ 35-ї щільності, 100мм товщина.
      Перекриття - монолітний залізобетон. Фасад - шовкова декоративна штукатурка.

      Ділянка 2,5 сотки з можливістю збільшення до 5с. Огорожа по периметру.

      Будинок введено в експлуатацію, всі документи готові до продажу.

      Ціна 75000$, без комісії для покупця. Встигніть придбати вигідний варіант житла. Телефонуйте!

      Дивіться відео https://youtu.be/j_Q_bVCVn74

      Надіслати скаргу

      Закрити
      Поскаржитися на об'єкт «Лідіце, 36 (г. Бровары)»
      Ваш коментар:(Необов'язково)
      Ваша скарга буде надіслана ріелтору, що розмістив об'єкт, а також адміністрації сайту АФНУ.
      Ваше ім'я:
      (Обов'язково)
      Ваш e-mail для відповіді:
      (Обов'язково)

      Коментарі