Вхід на сайт

Ел. пошта:
Пароль:

Реєстрація на сайті

Призвіще: Область:
Ім'я: Населений пункт:
    По батькові: Номер телефону:
    Ел. пошта: Компанія:
      Пароль: Посада:
      Повторіть пароль: Рік початку роботи:
      Фото:
      З правилами розміщення об'єктів погоджуюсь

      Забули пароль?

      Вкажіть ел. пошту — ми надішлемо Вам новий пароль для входу
      Ел. пошта:

      Проблема на сайті

      Закрити
      Ваш e-mail:
      (необов'язково)
      Розкажіть нам, що сталось


      ул. Молочная, 56 — Продається офіс

      (г. Харьков, Червонозаводский район)

      1200 $ за кв.м.

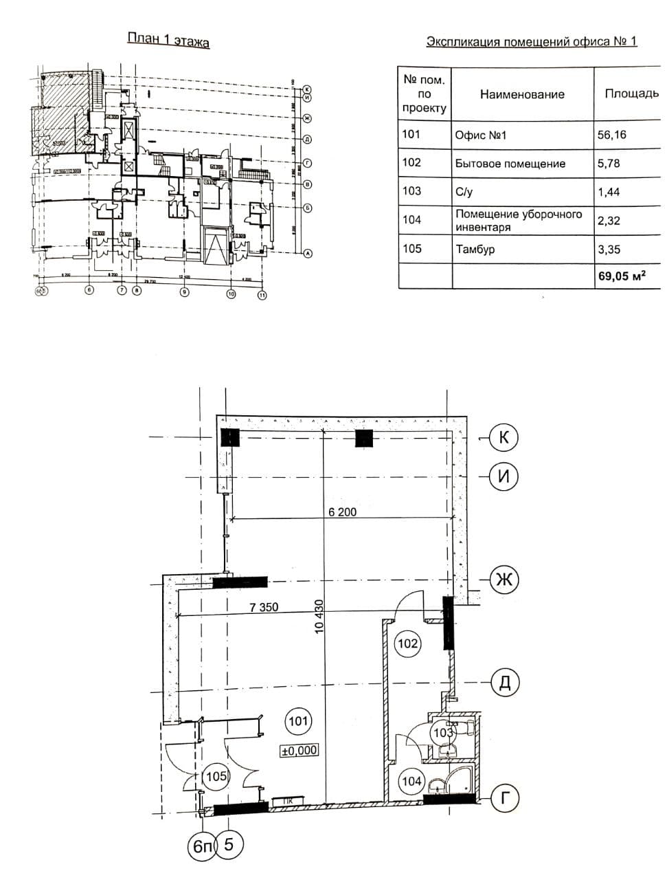
      Загальна площа: 69.05 кв.м

      Кімнат: 1

      Поверх: 1

      К-ть поверхів: 15

      Эксклюзивная продажа (переуступка). От собственника комерциооных помещений ЖК “Кристал”
      Офисное помещение площадью 69.05 кв. м высота потолков 4м,. От Застройщика ЖС-2 .
      По адресу г. Харьков ул. Молочная 56, 1-ый этаж 15-этажного здания . Имеется отдельный вход , витрина , централизованная канализация и водопровод , автономное отопление. Можно использовать для магазина , салона , общественного питания , офиса , стоматологии , и нотариата.

      Надіслати скаргу

      Закрити
      Поскаржитися на об'єкт «ул. Молочная, 56 (г. Харьков, Червонозаводский район)»
      Ваш коментар:(Необов'язково)
      Ваша скарга буде надіслана ріелтору, що розмістив об'єкт, а також адміністрації сайту АФНУ.
      Ваше ім'я:
      (Обов'язково)
      Ваш e-mail для відповіді:
      (Обов'язково)

      Коментарі