Вхід на сайт

Ел. пошта:
Пароль:

Реєстрація на сайті

Призвіще: Область:
Ім'я: Населений пункт:
    По батькові: Номер телефону:
    Ел. пошта: Компанія:
      Пароль: Посада:
      Повторіть пароль: Рік початку роботи:
      Фото:
      З правилами розміщення об'єктів погоджуюсь

      Забули пароль?

      Вкажіть ел. пошту — ми надішлемо Вам новий пароль для входу
      Ел. пошта:

      Проблема на сайті

      Закрити
      Ваш e-mail:
      (необов'язково)
      Розкажіть нам, що сталось


      ул. Воскресенская — Здається офіс в новобудові

      (г. Сумы, Ковпаковский район)

      1 $

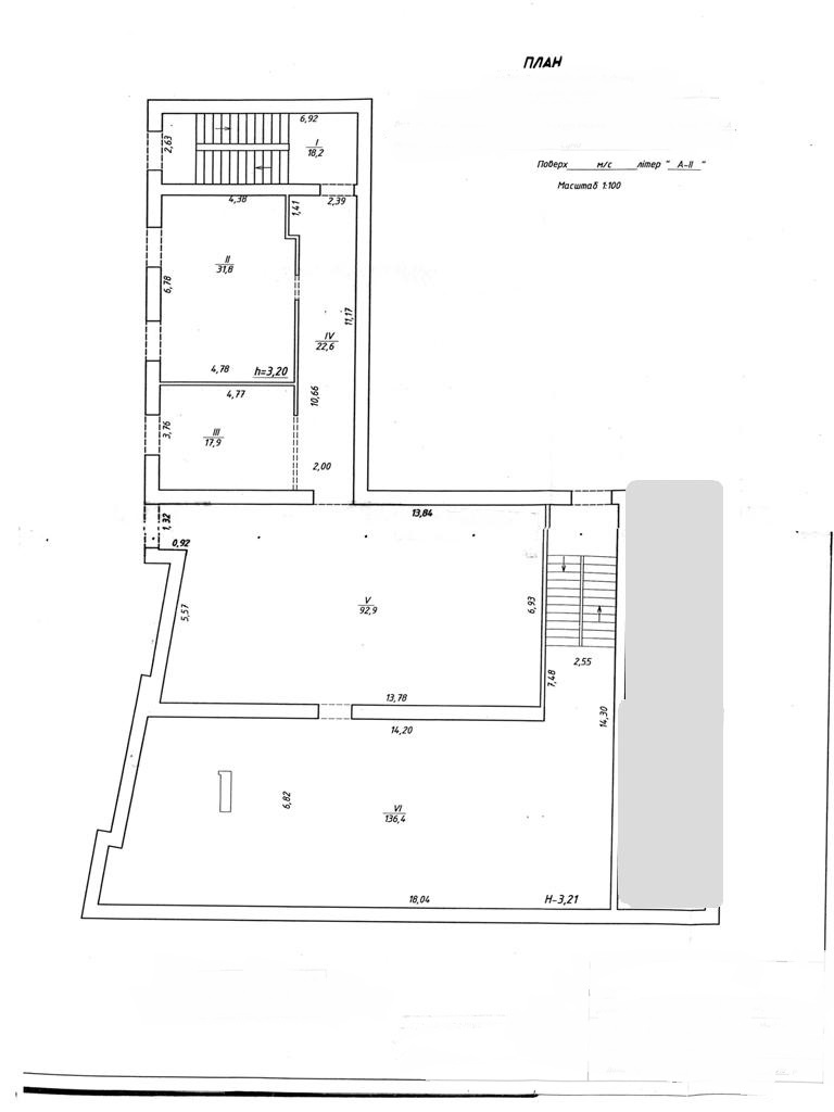
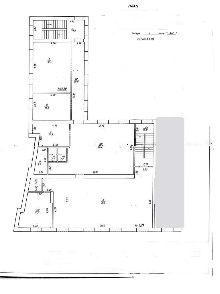
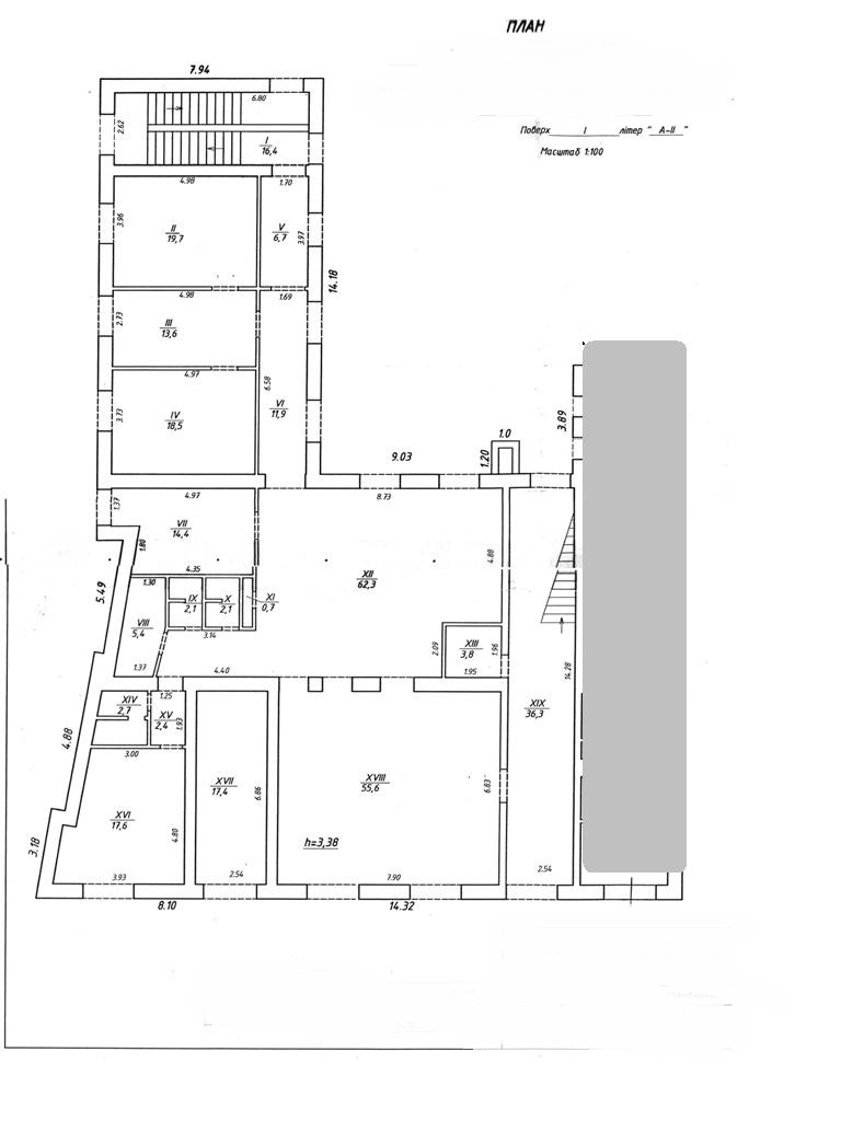
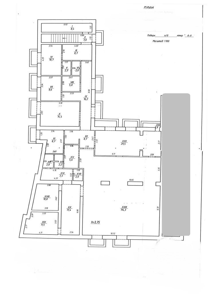
      Загальна площа: 1250 кв.м

      Кімнат: 20

      Поверх: 1

      К-ть поверхів: 4

      Сдается в аренду современное четырехэтажное здание, гармонично вписывающееся в архитектурный ансамбль исторического центра города. Объект привлекателен для инвестирования и по своему месторасположению, и по заложенному в нем функционалу.
      Внешний каркас с крышей и окнами выстроен полностью, идут внутренние работы - прокладка инженерных сетей, отделка. Каждый из этажей спроектирован под разный вид бизнеса.
      Возможные целевые назначения:
      Цоколь: - общепит - ресторан, фастфуд, кафе.
      1й этаж - под отделение банка.
      2й этаж - офисные помещения.
      3й этаж (мансарда) - офисные помещения творческого или свободного направления.
      Состояние объекта , на сейчас, "под чистовую отделку", т.е.черновая штукатурка, возможно шпаклёвка, окна, двери, разводка и подключение всех коммуникаций. Предполагается паркинг во дворе с заездом по пропускам и/или пультовому шлагбауму.
      Предлагается аренда, как всего здания целиком, так и поэтажно или частями.

      Надіслати скаргу

      Закрити
      Поскаржитися на об'єкт «ул. Воскресенская (г. Сумы, Ковпаковский район)»
      Ваш коментар:(Необов'язково)
      Ваша скарга буде надіслана ріелтору, що розмістив об'єкт, а також адміністрації сайту АФНУ.
      Ваше ім'я:
      (Обов'язково)
      Ваш e-mail для відповіді:
      (Обов'язково)

      Коментарі