Вхід на сайт

Ел. пошта:
Пароль:

Реєстрація на сайті

Призвіще: Область:
Ім'я: Населений пункт:
    По батькові: Номер телефону:
    Ел. пошта: Компанія:
      Пароль: Посада:
      Повторіть пароль: Рік початку роботи:
      Фото:
      З правилами розміщення об'єктів погоджуюсь

      Забули пароль?

      Вкажіть ел. пошту — ми надішлемо Вам новий пароль для входу
      Ел. пошта:

      Проблема на сайті

      Закрити
      Ваш e-mail:
      (необов'язково)
      Розкажіть нам, що сталось


      Відпочинку — Продається будинок

      (с. Марьяновка, Криворожский район)

      11000 $

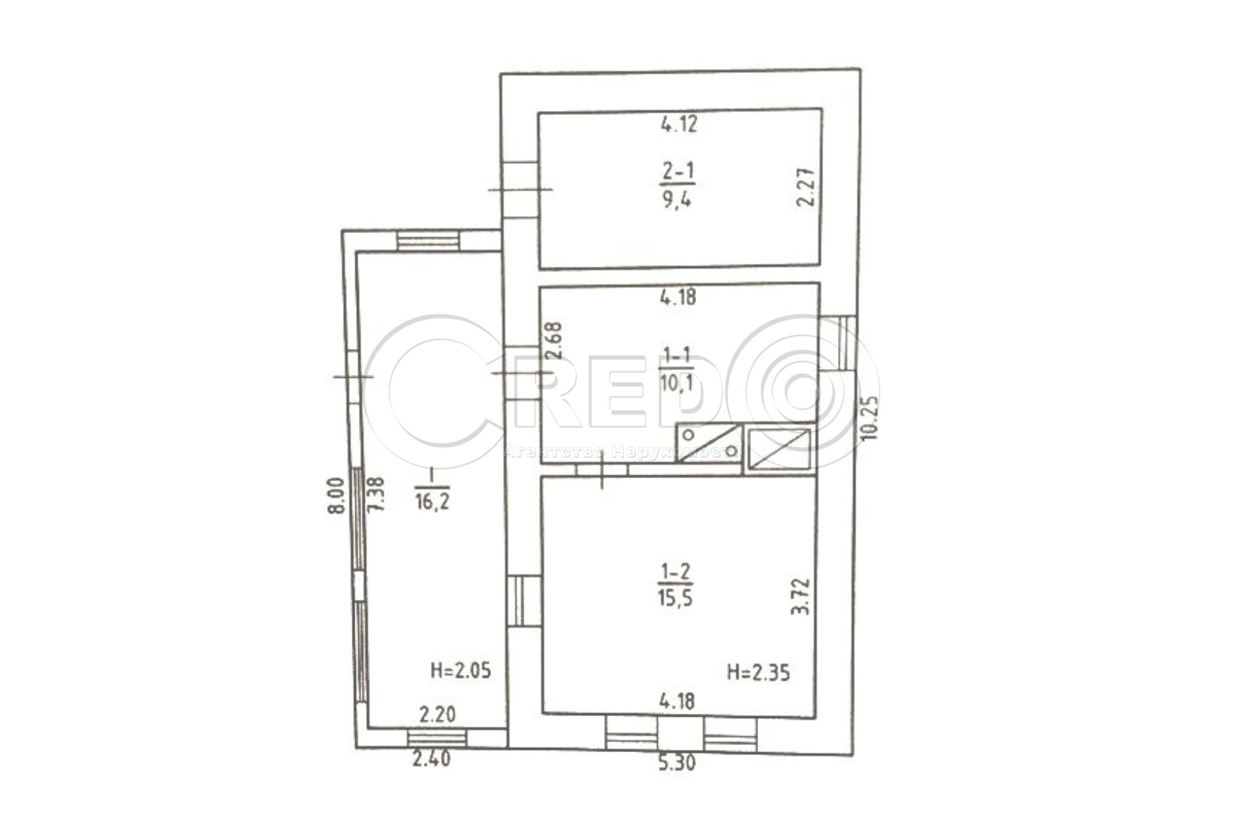
      Загальна площа: 51 кв.м

      Площа ділянки: 17 сот

      Кімнат: 2

      К-ть поверхів: 1

      Продаж будинку, с.Мар’янівка, вул. Відпочинку

      - Передмістя Кривого Рогу
      - До центра міста 9км
      - Екологічна чиста зона
      - Поряд річка

      Про домоволодіння:
      - Земельна ділянка 17 соток, кадастровий
      - Будинок загальною площею 51.2кв.м., житлова 35кв.м.
      - Літня кухня
      - Погріб

      Комунікації:
      - Опалення газове - котел
      - Електроенергія
      - Центральне водопостачання

      Локація:
      Найкраща екологічна локація в предмісті,
      Поряд річка, чисте свіже повітря.

      Вартість домоволодіння 11 000$ договірна

      За будь-якими питаннями за цією або схожими пропозиціями звертайтесь за номером телефону.
      З повагою, команда Credo!

      Надіслати скаргу

      Закрити
      Поскаржитися на об'єкт «Відпочинку (с. Марьяновка, Криворожский район)»
      Ваш коментар:(Необов'язково)
      Ваша скарга буде надіслана ріелтору, що розмістив об'єкт, а також адміністрації сайту АФНУ.
      Ваше ім'я:
      (Обов'язково)
      Ваш e-mail для відповіді:
      (Обов'язково)

      Коментарі