Вхід на сайт

Ел. пошта:
Пароль:

Реєстрація на сайті

Призвіще: Область:
Ім'я: Населений пункт:
    По батькові: Номер телефону:
    Ел. пошта: Компанія:
      Пароль: Посада:
      Повторіть пароль: Рік початку роботи:
      Фото:
      З правилами розміщення об'єктів погоджуюсь

      Забули пароль?

      Вкажіть ел. пошту — ми надішлемо Вам новий пароль для входу
      Ел. пошта:

      Проблема на сайті

      Закрити
      Ваш e-mail:
      (необов'язково)
      Розкажіть нам, що сталось


      ул. Короленко — Продається квартира

      (г. Полтава, Октябрьский район)

      62000 $

      Загальна площа: 63 кв.м

      Жила площа: 28 кв.м

      Площа кухні: 6 кв.м

      Кімнат: 2

      Поверх: 1

      К-ть поверхів: 3

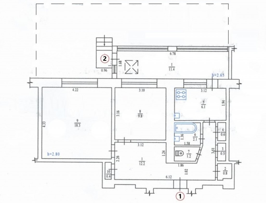
      ПРОДАМ 2-КІМНАТНУ КВАРТИРУ ТИПУ ТАУНХАУС з додатковим приватним виходом (дивись на плані вхід 2) у задній дворик (палісадник) у ЦЕНТРІ ПОЛТАВИ
      Розташування:
      вул. Короленка, поруч із Березовим сквером — комфортне та затишне місце для життя.
      Параметри:
      • Площа: 63,4 м²
      • 1-й поверх
      • Висота стелі: 2,8 м
      • Перекриття: з/б
      Планування:
      • Дві окремі кімнати: 18,3 м² + 9,8 м²
      • Хол / коридор: 12,2 м²
      • Балкон: 11,4 м² з підвалом / погребом
      • Гардеробна
      • 3 окремі кладовки
      Особливості:
      • Приватний вихід у задній дворик (палісадник) для відпочинку або садівництва (дивись на плані вхід 2)
      • Формат проживання, наближений до таунхаусу
      • Зручне розташування поруч із центром міста
      Квартира поєднує комфорт, приватність та функціональне планування — ідеальний варіант для тих, хто хоче жити в центрі Полтави, але з відчуттям власного простору.

      Надіслати скаргу

      Закрити
      Поскаржитися на об'єкт «ул. Короленко (г. Полтава, Октябрьский район)»
      Ваш коментар:(Необов'язково)
      Ваша скарга буде надіслана ріелтору, що розмістив об'єкт, а також адміністрації сайту АФНУ.
      Ваше ім'я:
      (Обов'язково)
      Ваш e-mail для відповіді:
      (Обов'язково)

      Вам также могут подойти

      П.Юрченка (г. Полтава, Киевский район) - Продається квартира, 60000 $ - АФНУ

      Оновлено: 7 листопада 2025

      Розміщено: 28 серпня 2020

      Продається квартира

      3 кімн., площа 79.6/54.3/8.6, поверх 1/4

      г. Полтава, П.Юрченка

      60000 $ без комісії

      Остапченко Александр Степанович

      соучредитель (Агентство недвижимости "Альянс риэлти" Полтава)

      Продажа 3 комнатной квартиры в кирпичном доме в Авиагородке по ул. П.Юрченка
      Характеристика квартиры:
      - общая площадь - 79, м.кв;
      - жилая площадь - 54,3 м.кв;
      - кухня - 8,6…

      Детальніше

      бул. Богдана Хмельницкого (г. Полтава, Ленинский район) - Продається квартира, 50000 $ - АФНУ

      Оновлено: 29 грудня 2025

      Розміщено: 22 травня 2024

      Продається квартира

      2 кімн., площа 47.1/26.9/8, поверх 5/9

      г. Полтава, бул. Богдана Хмельницкого

      50000 $

      Остапченко Александр Степанович

      соучредитель (Агентство недвижимости "Альянс риэлти" Полтава)

      Продаж 2 кімнатної квартири на ближній Леваді по проспекту Богдана Хмельницького (поряд з дитячою обласною лікарнею), з окремими кімнатами та індивідуальним лічильником на опалення
      Характеристика квартири:
      - загальна площа 47,1…

      Детальніше

      Коментарі