Вхід на сайт

Ел. пошта:
Пароль:

Реєстрація на сайті

Призвіще: Область:
Ім'я: Населений пункт:
    По батькові: Номер телефону:
    Ел. пошта: Компанія:
      Пароль: Посада:
      Повторіть пароль: Рік початку роботи:
      Фото:
      З правилами розміщення об'єктів погоджуюсь

      Забули пароль?

      Вкажіть ел. пошту — ми надішлемо Вам новий пароль для входу
      Ел. пошта:

      Проблема на сайті

      Закрити
      Ваш e-mail:
      (необов'язково)
      Розкажіть нам, що сталось


      вул. Шкапенка — Продається квартира

      (г. Кривой Рог, Жовтневый район)

      12000 $

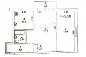
      Загальна площа: 46 кв.м

      Жила площа: 32 кв.м

      Площа кухні: 5 кв.м

      Кімнат: 2

      Поверх: 3

      К-ть поверхів: 5

      Пропонуємо до продажу 2кімнатну квартиру у Покровському
      районі зі зручним розташуванням, з виходом як на "Гірник",
      на "Ставки" та район "Світанку".
      Охайний будинок, доглянуте подвір'я, працююче ОСББ,
      відповідальні сусіди.

      Про об'єкт:
      - 2кімнатна квартира
      - 3 поверх 5типоверхового будинку.
      - загальна площа 46,7 м.кв.
      - житлова площа 32 м.кв.

      Планування об'єкту:
      - утеплена, кутова.
      - загальна кімната прохідна.
      - санвузол суміжний.

      Особливості квартири:
      - вікна та балконний блок замінені на металопластикові.
      - зроблено повний ремонт санвузла, встановлено бойлер,
      облаштовано місце для пральної машини.
      - відремонтована кухня.
      - міжкімнатні двері сучасні "канадка".
      - оновлено електрику, встановлено запобіжники,
      лічильник "день-ніч".
      - біля будинку маємо погріб.

      Локація:
      - розташування будинку на затишній вулиці Шкапенка
      навпроти ліцею "Колія".
      - поряд дитяча спортивна школа №6 з відкритим
      басейном " Дельфін", Гірничий коледж, Покровський
      районий суд, гімназія №36, школа № 62.
      - в шаговому доступі супермаркети "Делві", "Маркетопт"
      та інші.
      - вихід до транспортних розв'язок вулиць Кропивницького,
      Зінчевського(ХХ Партз'їзду), Ф.Караманіц(Ватутіна).
      Квартира вільна та готова до заселення!

      Ціна на сьогодні 12 000$. Розглянемо ваші пропозиції.
      З будь-яких питань за цією пропозицією звертайтесь за номером телефону 067 982 17 19.
      З повагою, команда CREDO!

      Надіслати скаргу

      Закрити
      Поскаржитися на об'єкт «вул. Шкапенка (г. Кривой Рог, Жовтневый район)»
      Ваш коментар:(Необов'язково)
      Ваша скарга буде надіслана ріелтору, що розмістив об'єкт, а також адміністрації сайту АФНУ.
      Ваше ім'я:
      (Обов'язково)
      Ваш e-mail для відповіді:
      (Обов'язково)

      Вам также могут подойти

      ул. Тухачевского (г. Кривой Рог, Жовтневый район) - Продається квартира, 9900 $ - АФНУ

      Оновлено: 28 жовтня

      Розміщено: 12 серпня

      Продається квартира

      1 кімн., площа 31/17/6, поверх 5/5

      г. Кривой Рог, ул. Тухачевского

      9900 $

      Літвинова Ірина Вікторівна

      Продаж 1-х кімнатної квартири, Покровський район, вул Е.Фукса (Тухачевского).

      Про об’єкт:

      - Квартира розташована на 5/5 поверхового будинку, дах після капітального ремонту.
      - Загальна площа 31,53кв.м.,
      - Житлова 17.3кв.м.,
      -…

      Детальніше

      ул. Ильичевская (г. Кривой Рог, Саксаганский район) - Продається квартира, 12500 $ - АФНУ

      Оновлено: 13 листопада

      Розміщено: 28 травня

      Продається квартира

      2 кімн., площа 50/28/5, поверх 2/2

      г. Кривой Рог, ул. Ильичевская

      12500 $

      Літвинова Ірина Вікторівна

      Продаж 2-х кімнатної квартири, Саксаганський район, вул.Гетьманська, Дзержинка.

      Про об’єкт:

      - Квартира розташована на 2/2 поверхового будинку.
      - Загальна площа 50,3кв.м.,
      - Житлова 28.2кв.м., всі кімнати окремі,
      - Кухня 5кв.м.,…

      Детальніше

      ул. Симонова (г. Кривой Рог, Долгинцевский район) - Продається квартира, 10200 $ - АФНУ

      Оновлено: 13 листопада

      Розміщено: 17 червня

      Продається квартира

      1 кімн., площа 38/16/9, поверх 7/9

      г. Кривой Рог, ул. Симонова

      10200 $

      Літвинова Ірина Вікторівна

      Продаж 1-но кімнатної квартири, вул. 21-Ї бригади Національної гвардії (Симонова), Східний-1.

      Про об’єкт:

      - Квартира розташована на 7/9 поверхового будинку, двостороння.
      - Загальна площа 38,45кв.м.,
      - Житлова 16.6кв.м.,
      - Кухня…

      Детальніше

      Коментарі